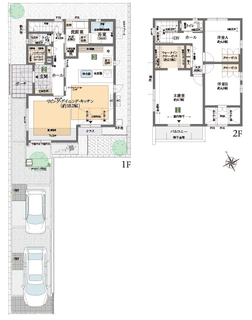
□ 1階床面積/52.37㎡ □ 2階床面積/48.74㎡
プライベート感を高めたアプローチ、
動線効率の高い邸。



挽き板フロア
OAK
オーク

日本でもなじみ深い神聖な木
「森の王様」と呼ばれ、ウイスキーの熟成樽として欠かせない樹種です。ウイスキーを琥珀色に染めるとともに、まろやかで芳醇な香味付けをします。心材は淡黄褐色で表面の美しい班が特徴です。豊かな木質感を持った耐久性の高い樹種です。
○全体区画図は設計図書を基に描き起こしたもので実際とは多少異なります。
○住宅の平面、外観、外構(植栽含む)等は工事施工上の都合により現況と異なる場合がありますので、図面と異なる場合は現況を優先します。
○記載の面積は建築確認申請面積となります。ただし施工面積は変更になる場合がございます。予めご了承ください。
○車両は駐車位置を示したものです。価格には含まれません。
※1 駐車スペースの駐車台数は目安です。車種によっては駐車できない場合があります。実際に駐車可能な車両サイズは現地にてご確認ください。