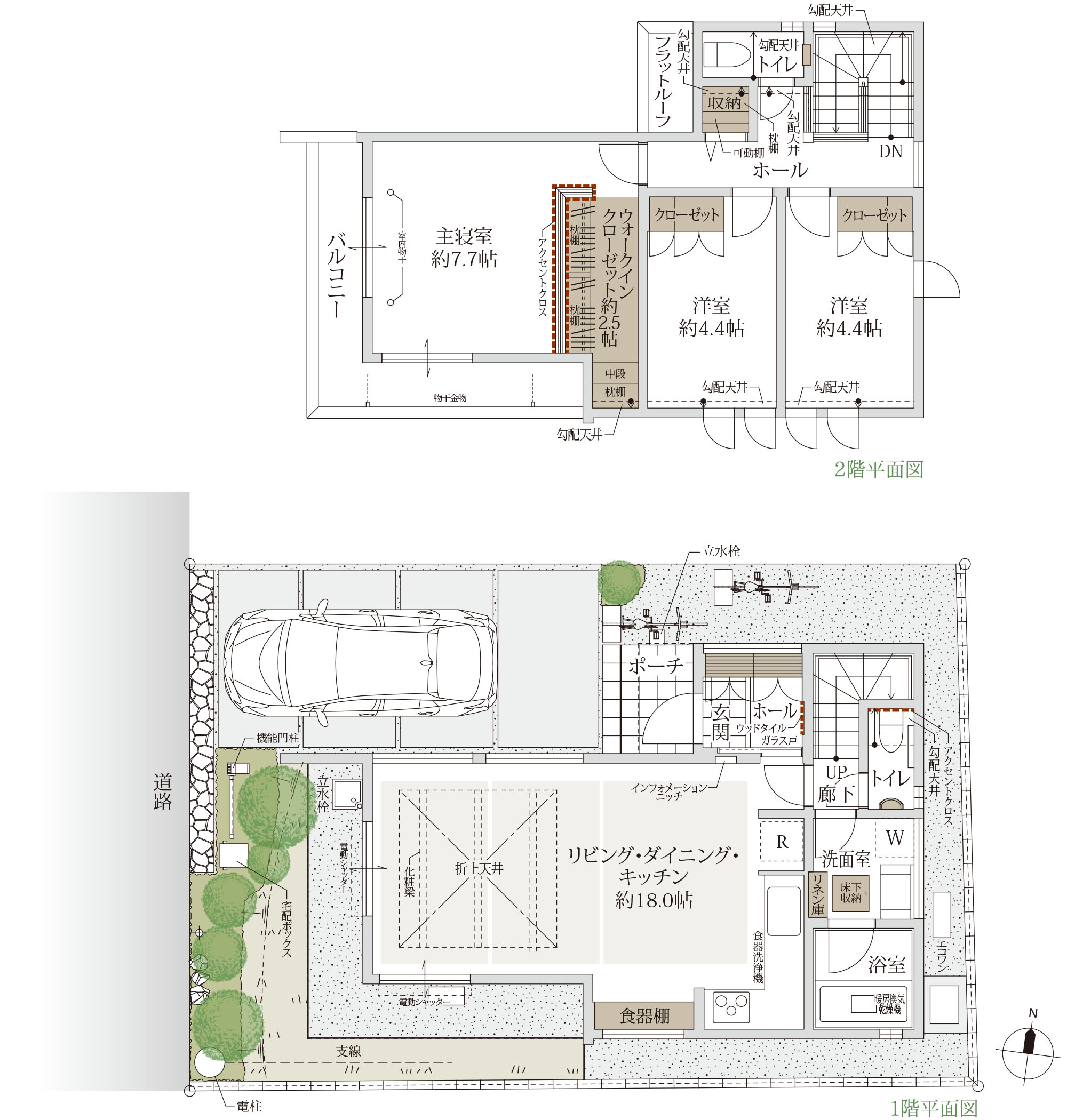
Plan No.5



1階床面積/44.71㎡2階床面積/44.76㎡
床材カラー:オーク

■凡例表
建物面積は建築確認申請の面積です。
帖数は1帖を1.6562㎡として概算しております。壁ふかし、本棚は床面積に含みます。
住宅の平面、外観、設備、外構(植栽含む)等は、工事施工上の都合により現況と異なる場合があります。図面と異なる場合は現況を優先します。
一部バルコニー面積が建物面積に含まれている棟があります。
掲載の車、自転車・家具・家電・備品等は価格に含まれません。
Plan No.5



1階床面積/44.71㎡2階床面積/44.76㎡
床材カラー:オーク

■凡例表
建物面積は建築確認申請の面積です。
帖数は1帖を1.6562㎡として概算しております。壁ふかし、本棚は床面積に含みます。
住宅の平面、外観、設備、外構(植栽含む)等は、工事施工上の都合により現況と異なる場合があります。図面と異なる場合は現況を優先します。
一部バルコニー面積が建物面積に含まれている棟があります。
掲載の車、自転車・家具・家電・備品等は価格に含まれません。